Dorfgemeinschaftshaus
Für Aktivitäten und Feste steht das Dorfgemeinschaftshaus Allmannsweiler zur Verfügung in dem zwei Säle gemietet werden können.
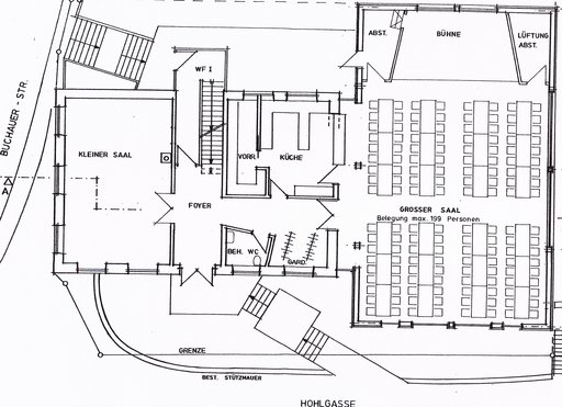
Kleiner Saal
Kapazität: max. 40 Personen
Mietpreise pro Tag:
- Einheimische 40,00 EUR
- Auswärtige 80,00 EUR
- Reinigung 40,00 EUR
- für Veranstaltungen mit Eintritt zzgl. 40,00 EUR
- Küchenbenützung 40,00 EUR
Großer Saal mit Bühne
Kapazität: max. 199 Personen
Mietpreise pro Tag:
- Einheimische 150,00 EUR
- Auswärtige 300,00 EUR
- Reinigung 50,00 EUR
- für Veranstaltungen mit Eintritt zzgl. 150,00 EUR
- Küchenbenutzung 40,00 EUR
Im Mietpreis enthalten:
- Tische 180 x 80 cm und Stühle nach Bedarf
- Küche mit Herd, 3 Kühlschränke, 2 Spülmaschinen
- Zwei Großraumkühlschränke
- Geschirr, Besteck und Gläser
- Kaffeemaschinen
- Strom
- Wasser
- Müllentsorgung
- Freies WLAN (Smight)
Weitere Ausstattungsgegenstände sowie Technik auf Anfrage.
Die Benutzungs- und Gebührenordnung ersehen Sie hier. (PDF-Datei)